Gutshaus FeWo Warnemünde - Dassow
Germany’s theme parks promise unforgettable adventures for everyone! From thrilling roller coasters to enchanting shows, these attractions cater to families, couples, and friends alike. Experience the magic of nature-themed rides, state-of-the-art amusements, and breathtaking destinations. Each park offers unique thrills, from adrenaline-packed rides to immersive entertainment. Combine fun and exploration with Germany’s beautiful surroundings. Don’t wait-plan your dream holiday in Germany.
Gutshaus FeWo Warnemünde
Dassow 28 Rankendorfer Straße OG/2
WiFi
Parking
Animal acceptance
We speak
ES
7.0/10
WiFi
Parking
Animal acceptance
We speak
ES
7.0/10
Located in Dassow, in a historic building, 27 km from Combinale Theater, Gutshaus FeWo Warnemünde is an apartment with a garden and barbecue facilities. The property features garden and quiet street views, and is 27 km from Guenter Grass House. There is an outdoor fireplace and guests can make use of free WiFi and free private parking.
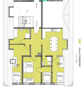
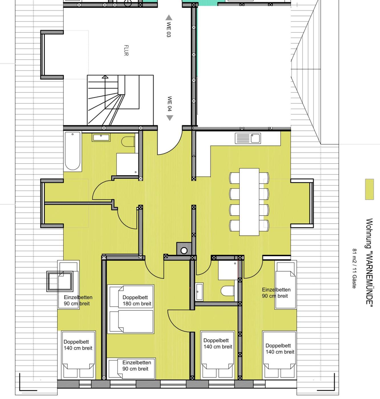
The spacious apartment is equipped with 4 bedrooms, a fully equipped kitchen with a dishwasher and an oven, and 2 bathrooms with a shower. Towels and bed linen are provided in the apartment. For added privacy, the accommodation has a private entrance and soundproofing.
The apartment has a picnic areayou can spend a day out in the open.
Lübeck Cathedral is 27 km from the apartment, while Museum Church St. Katharinen is 27 km away. Lübeck Airport is 37 km from the property.
The hotel day starts from hour 14:00 and ends at 11:30.
Managed by a private host
Apartment. Featuring a private entrance, this spacious apartment also is comprised of 4 separate bedrooms, 2 bathrooms with a shower, a kitchen and a dining area. Meals can be prepared in the kitchen, which is fitted with a stovetop, a refrigerator, a dishwasher and kitchenware. Among the room amenities are soundproof walls, a coffee machine and a wardrobe as well as garden views. The unit offers 6 beds.
Internet services
Non-smoking throughout
Staff follow all safety protocols as directed by local authorities
Non-smoking rooms
WiFi available in all areas
Private parking
Invoice provided
Family rooms
Guest accommodation sealed after cleaning
Private check-in/check-out
Outdoor fireplace
Pets allowed
Picnic area
Fire extinguishers
Free WiFi
All plates, cutlery, glasses and other tableware have been sanitized
Heating
WiFi
Smoke alarms
BBQ facilities
Parking
Key access
Linens, towels and laundry washed in accordance with local authority guidelines
Use of cleaning chemicals that are effective against Coronavirus
First aid kit available
Soundproof rooms
Garden
Contactless check-in/check-out
Shared stationery such as printed menus, magazines, pens, and paper removed
Parking on site
Free parking
Physical distancing rules followed
Screens or physical barriers placed between staff and guests in appropriate areas
Guest accommodation is disinfected between stays
