DKK7 Ferienwohnung Abendsonne F - Niendorf
Germany’s theme parks promise unforgettable adventures for everyone! From thrilling roller coasters to enchanting shows, these attractions cater to families, couples, and friends alike. Experience the magic of nature-themed rides, state-of-the-art amusements, and breathtaking destinations. Each park offers unique thrills, from adrenaline-packed rides to immersive entertainment. Combine fun and exploration with Germany’s beautiful surroundings. Don’t wait-plan your dream holiday in Germany.
DKK7 Ferienwohnung Abendsonne F
Niendorf Dr.-Karl-Krause-Str. 7
WiFi
Parking
Animal acceptance
We speak
9.0/10
WiFi
Parking
Animal acceptance
We speak
9.0/10
DKK7 Ferienwohnung Abendsonne F is located in Niendorf, 18 km from HANSA-PARK, 22 km from Combinale Theater, as well as 22 km from Guenter Grass House. This property offers access to a balcony, free private parking and free WiFi. The property is non-smoking and is200 metres from Niendorf Beach.
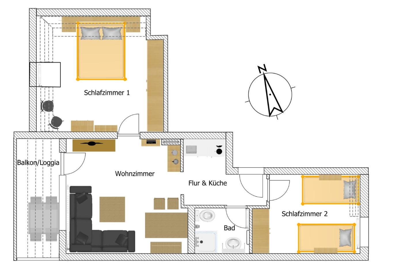
The apartment features 2 bedrooms, a TV, a fully equipped kitchen with a microwave and a toaster, a washing machine, and 1 bathroom with a shower.
Museum Church St. Katharinen is 22 km from the apartment, while Luebeck Central Station is 25 km away. Lübeck Airport is 28 km from the property.
The hotel day starts from hour 15:00 and ends at 10:00.
This property will not accommodate hen, stag or similar parties.
Apartment with Balcony. This apartment features a kitchen, a seating area, 2 separate bedrooms and 1 bathroom with a shower and a hairdryer. The well-fitted kitchen has a stovetop, a refrigerator, kitchenware and a microwave. This apartment features a washing machine, a coffee machine, a TV and a balcony. The unit has 3 beds.
Free WiFi
WiFi available in all areas
Pets allowed
Heating
Non-smoking rooms
Private parking
Smoke alarms
Parking on site
Internet services
Non-smoking throughout
Beach
WiFi
Parking
Free parking
